- Living area
- About 146 m²
- Plot area
- About 312 m²
- Construction year
- Built in 2020
- Number of rooms
- 4 rooms (3 bedrooms)
Ready-to-move-in two-bedroom apartment in a green residential area – Bertus Aafjesstraat 31, Swolgen
On the edge of the village Swolgen, on a quiet location with, at the front side, a nice view over the farmland and an extensive forest area within throwing distance, this modern semi-detached house from 2020 is situated. The house is gas-free, energy-efficient, well-maintained and offers with a living space of no less than 202 m² a comfortable living environment for starters or movers looking for space, peace, and sustainability.
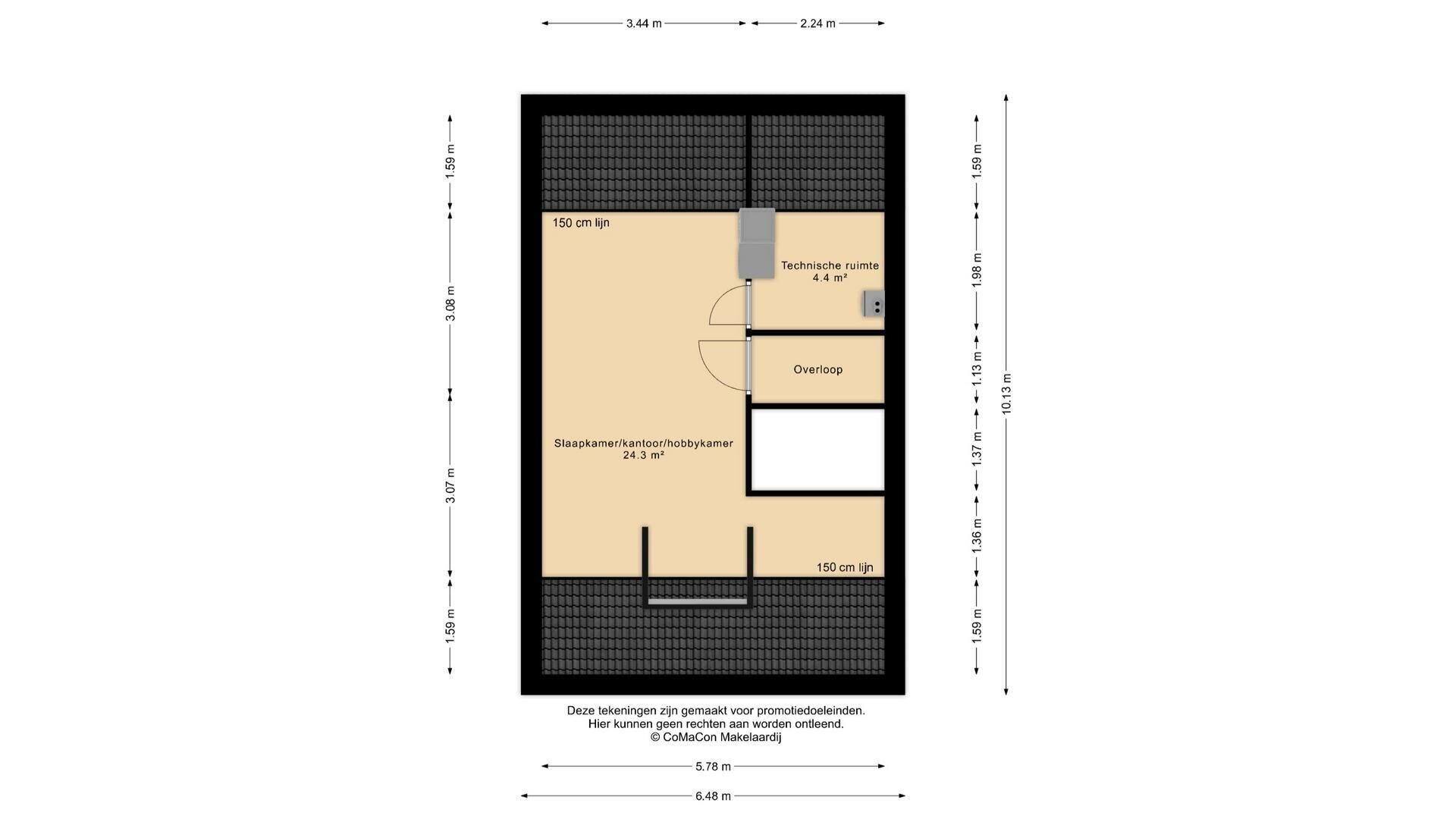
The property is fully move-in ready. The ground floor and first floor are equipped with underfloor heating and have a modern finish. The open kitchen has an island and is fitted with modern built-in appliances. On the first floor, there are three bedrooms and a bathroom that is completely fitted with a bathtub, walk-in shower, double vanity unit, and wall-mounted toilet. The second floor features a spacious room suitable for an extra bedroom, home office, or hobby space. The large attic offers panoramic views of the countryside and provides plenty of natural light.
The plot of 312 m² offers a lot of privacy. The back garden is beautifully and maintenance-friendly arranged and features a detached storage shed with a roof, which can be enclosed with a glass wall. At the front there is a driveway for two cars and access to the garage/storage.
The property is equipped with plastic windows with HR++ glazing, a heat pump system, floor heating on both living levels, and 19 solar panels. The energy label A and the low monthly energy costs of just € 15.66 make this property attractive for those who want to live sustainably without compromising on comfort.
Asking price: € 499,000 n.n.
Located at Bertus Aafjesstraat 31 in Swolgen, this home offers a combination of modern living comfort, energy efficiency, and a rural and wooded living environment. An opportunity for those seeking a future-oriented home in a quiet, green setting.
SWOLGEN:
The house is located on a dead-end street that borders an extensive forest area where you can walk and mountain bike for hours.
You reach the A73 within 7 minutes.
A large supermarket is within a 4-minute distance.
Primary education, day care for children, sports clubs, and hospitality are present in Swolgen.
Secondary education, special education, sports, culture, shops and hospitality are well represented in the nearby Horst, making living in this place attractive for young and old.
There is a bus line present and via the train station Venray-Oostrum or Horst-Sevenum, Venlo, Nijmegen and Eindhoven are well accessible.
CHARACTERISTICS / FEATURES
• Twin-over-double accommodation
• asking price € 499,000
plug-and-play ready
• construction year 2020
• 3 bedrooms and bathroom on the 1st floor
• detached storage with roof, closable with glass wall
• plastic windows with HR++ glazing
• plot 312 m2
• gebruikersoppervlakte 202 m2
• oppervlak wonen 146 m2
• overig inpandige ruimte 25 m2
• externe berging 31 m2
• energielabel A
• warmtepomp (gasloos)
• vloerverwarming op begane grond en 1e verdieping
• 19 zonnepanelen
• energiekosten slecht € 15,66 per maand
• 2e verdieping grote slaapkamer/kantoorruimte
• garage/berging en oprit voor 2 auto’s
• gelegen tegen bosrand
• aan voorzijde vrij uitzicht over de landerijen
The information in this publication has been compiled with due care.
We accept no liability for any incompleteness, inaccuracy or otherwise and the consequences thereof.
De tekeningen met vermelde afmetingen zijn gemaakt voor promotiedoeleinden.
Hier kunnen geen rechten aan ontleend worden. Lees de volledige omschrijving
Transfer
- Asking price
- € 499,000 kk
- Status
- Sold subject to conditions
- Acceptance
- In consultation
Construction
- Object type
- Single-family home, 2-bedroom apartment under one roof
- Type of construction
- Existing construction
- Construction year
- 2020
- Type roof
- Rooftop covered with tiles
Area and content
- Living area
- 146 m²
- Plot area
- 312 m²
- Contents
- 734 m³
- External storage space
- 31 m²
Classification
- Number of rooms
- 4 rooms (3 bedrooms)
- Number of bathrooms
- 1 bathroom and 1 separate toilet
- Bathroom facilities
- Walk-in shower, bathtub, floor heating, and vanity unit
- Number of floors
- 3 residential levels
- Provisions
- External sun protection, fiber optic cable, mechanical ventilation, shutters, TV cable, and solar panels
Energy
- Energy label
- A
- Isolation
- HR glass and fully insulated
- Heating
- Wood stove, full floor heating and heat pump
- Hot water
- Electric water heater
Outdoor space
- Location
- Aan bosrand, aan rustige weg, in bosrijke omgeving, in woonwijk en vrij uitzicht
- Garden
- Back garden
- Dimensions backyard
- 170 m² (17,00 meter diep en 10,00 meter breed)
- location of garden
- Located in the east
Mine space
- Shed / storage
- Detached wooden garage
- Provisions
- Electrical and heating
Garage
- Type garage
- Attached stone garage
- Capacity
- 1 car
- Provisions
- Electrical, heating and running water
- Isolation
- Completely isolated
Parking facility
- Type of parking facility
- Parking on own property and public parking
Energy consumption in Swolgen
Energy label this property
Energielabel A
Energy label publication:
Annual electricity consumption
(Average under one roof in Swolgen)
Annual gas consumption
(Average under one roof in Swolgen)
* Figures are derived from CBS and are intended as an indication and may differ for this property
Mortgage costs indicator
Own contribution:
Savings / excess value
Interest:
Lowest 10-year interest rate
Lowest 10-year interest rate
2,83% - Centraal Beheer Groen... - NHG
3,1% - Centraal Beheer Groen L... - 80%
Lowest 20-year interest rate
3,19% - Centraal Beheer Groen... - NHG
3,47% - Argenta Groen Hypothee... - 80%
Lowest 30-year interest rate
3,34% - Centraal Beheer Groen... - NHG
3,64% - Argenta Groen Hypothee... - 80%
Mortgage:
Gross monthly expenses: € 0 p/m
Net monthly expenses: € 0 p/m
How do we calculate this?
The interest rate is based on the lowest 10-year fixed rate for a single mortgage part. The stated rate (3.1% zonder NHG) was verified on 06-12-2025. This calculation is based on an annuity mortgage that is fully repaid, with monthly payments remaining the same throughout the entire term. The actual interest rate and net monthly costs may vary depending on your personal situation and the mortgage provider. Consult a financial advisor for an accurate calculation and advice. No rights can be derived from this calculation; it is for indicative purposes only.
Documentation
Cadastral map
Living environment
Virtual tour
Virtual tour
Viewing
To make an offer
Valuation
Search query
Download everything
Viewing solar limits
On the map
Residents of Swolgen
Statistics for postal code area 5866
- Total number of inhabitants
- 1260 residents
- Men
- 51%
- Women
- 49%
Residents of Swolgen
Statistics for postal code area 5866
- until 15 years
- 13%
- 15 to 25 years
- 13%
- 25 to 35 years
- 20%
- 45 to 65 years
- 35%
- 65 and older
- 19%
Households in Swolgen
Statistics for postal code area 5866
- Single without children
- 24%
- Multiple persons without children
- 39%
- Households without children
- 63%
Households in Swolgen
Statistics for postal code area 5866
- Households with one child
- 5%
- Households with multiple children
- 32%
- Households with children
- 37%
Homes in Swolgen
Statistics for postal code area 5866
- Housing for 1945
- 17%
- Houses between 1945 and 1965
- 16%
- Houses between 1965 and 1975
- 19%
- Houses between 1975 and 1985
- 15%
- Houses between 1985 and 1995
- 13%
Homes in Swolgen
Statistics for postal code area 5866
- Homes between 1995 and 2005
- 10%
- Homes between 2005 and 2015
- 5%
- Homes after 2015
- 2%
- Rented apartments
- 10%
- Purchase properties
- 90%
Other income Swolgen
Statistics for postal code area 5866
- Average WOZ value
- € 282.000,-
- People under 65 with disability benefits
- Niet beschikbaar
Other income Swolgen
Statistics for postal code area 5866
- Addresses per square kilometer
- 138
- "Urbanity (scale 1 to 5)"
- 20%
CoMaCon Makelaardij
If you have questions or would like to schedule a viewing, you can use the form on the right. You will then be contacted shortly thereafter.
Make contact
Comacon Estate Agents
At Comacon Makelaardij, you get more than just an estate agent. Thanks to our unique combination of real estate experience and construction background, we offer a comprehensive package that goes beyond standard service.
What sets us apart:
Valuation without costs
We start with a free valuation of your property - without obligations.
Personal approach and tranquility in the process
Your wishes are central. We take the time to thoroughly understand your situation and guide you in a relaxed manner.
Strategic purchase and sales plan
No standard approach, but a carefully tailored strategy to maximize the outcome of your transaction.
Honesty as core value
We work transparently and attach great importance to reliability and ethical conduct.
Knowledge of business
You can count on professional guidance from an experienced expert who thinks along with you.
Detailed methodology
Our processes have been refined down to the smallest details so that you benefit from a streamlined handling.
Care for the buyer
We find it important that the buyer is also well guided, so that the entire transaction runs smoothly and responsibly.
Thorough inspections
Our tours are clear, informative, and tailored to the needs of potential buyers.
Suitable brokerage
Our rates are adjusted to the item, so you pay a fair price for our service.
Startup costs
In addition to commission, we charge startup costs for preparing and presenting your property.
Purchasing guidance gift with sales assignment
Do you give us your trust for the sale? Then we will help you free of charge with buying a new home.
Discover the difference of Comacon Real Estate
We fully commit to achieving the best results for you when buying or selling. Contact us without obligation and experience our involved and professional approach yourself.
Your success is our starting point.
Latest reviews
-
Marvin
A very fine, reliable, professional real estate agent! He sold our house quickly, was clear to all parties involved, and ensured a pleasant...
-
Turfstrooisel 6
It was very nice working with Theo Cox. An expert, critical and friendly broker who guarantees service for all parties involved. A definite...
-
Mgr Aertsstraat 25
At first, the serious interest was low. But yes, you just need the right buyer who can look beyond certain things! It's not a new build, but...